Trilocale in vendita

Montichiari, Via Novagli Campagna - Novagli Campagna
€ 75.000
3 locali 3 locali
90 Mq 90 Mq
1 bagno 1 bagno

Trilocale in vendita

Montichiari, Via Novagli Campagna - Novagli Campagna

Descrizione annuncio

ATTENZIONE IMMOBILE VENDUTO TRAMITE ASTA TELEMATICA DEL 13/01/2026.

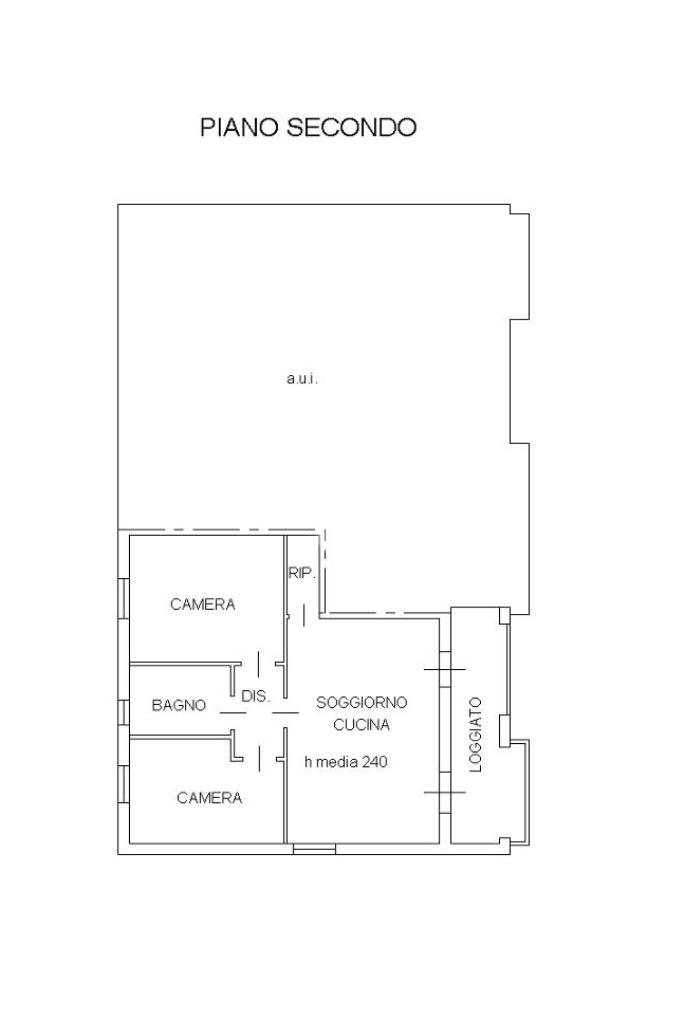
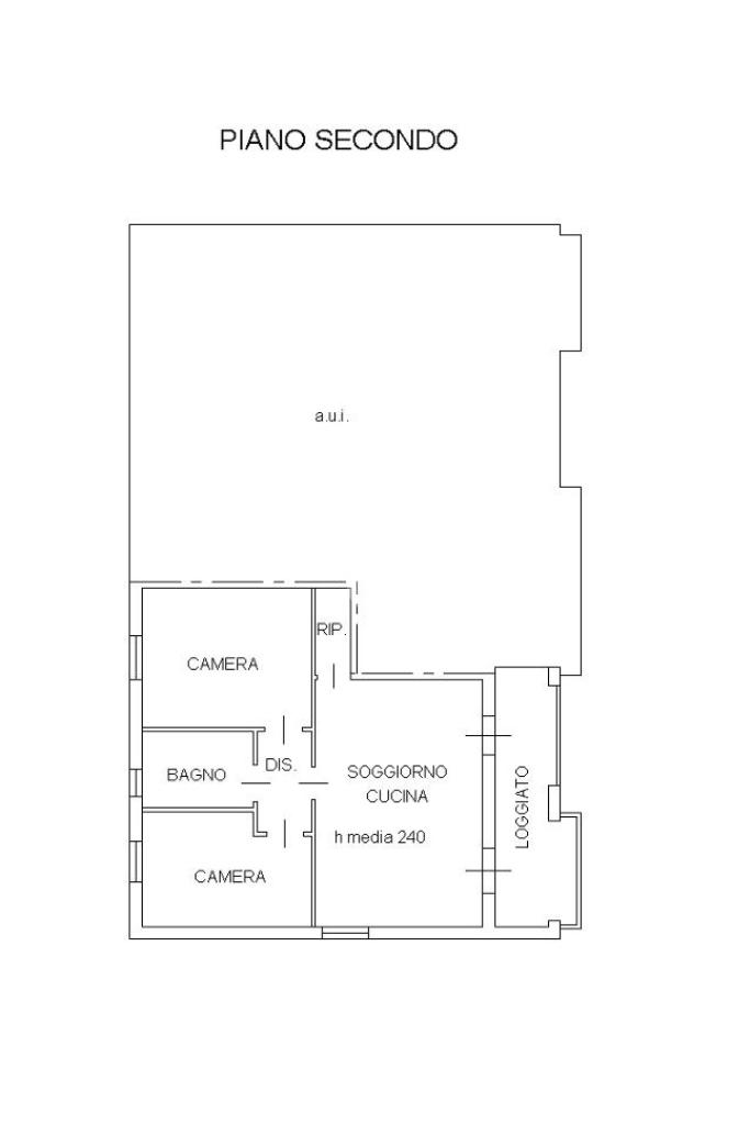
Piena proprietà di un appartamento al secondo e ultimo piano con ascensore condominiale. Soggiorno con angolo cottura, disimpegno, ripostiglio, 2 camere, bagno, loggiato e garage.

IMMOBILI OGGETTO DI ESECUZIONE IMMOBILIARE. IL PREZZO E' RIFERITO ALL'OFFERTA MINIMA.

TECNOCASA AL TUO SERVIZIO

La nostra Agenzia mette a disposizione tutta la professionalità acquisita dalla pluriennale esperienza nel settore delle compravendite e delle locazioni immobiliari, offrendo un servizio a 360° che ha come obiettivo la piena soddisfazione del Cliente.

Servizi per chi vuole vendere:

Conoscenza dettagliata della zona e dell'andamento del mercato locale che permette una corretta valutazione dell'immobile.

Promozione pubblicitaria adeguata con la pubblicazione di annunci sul periodico Tecnocasa (tiratura 180.000 copie), su varie pubblicazioni locali e sul sito Contatta l'Agenzia con il servizio 'Invia Richiesta'

Assistenza in tutte le fasi della compravendita.

Valutazione gratuita.

Assistenza finanziaria all'Acquirente per garantire il saldo alla stipula del rogito notarile.

Banca Dati condivisa con le altre Agenzie del Gruppo che garantisce un elevato numero di potenziali acquirenti.

Gestione degli appuntamenti e organizzazione delle visite all'immobile.

Nessun compenso dovuto in caso di mancata conclusione dell'affare.

Servizi per chi vuole acquistare:

Assistenza continuativa fino alla definizione dell'operazione di acquisto.

Consulenza di un Professionista che conosce in modo dettagliato la zona, l'andamento del mercato locale e le tipologie degli immobili presenti.

Condivisione della richiesta fra più Agenzie ubicate nelle zone di interesse che moltiplica le possibilità di trovare la casa giusta.

Immobili al reale prezzo di mercato: la profonda conoscenza della realtà locale permette di formulare valutazioni corrette e rispondenti alla domanda e all'offerta della zona.

Consulenza finanziaria per trovare il mutuo adatto alle proprie esigenze.

Mostra tutto

Nelle vicinanze

Trasporto pubblico Trasporto pubblico
Fermata bus scolastici
Fermata bus scolastici
20 m
TRE ARANCI - S.S. 236 Goitese Autoplanet
TRE ARANCI - S.S. 236 Goitese Autoplanet
130 m
Scuole Scuole
Oratorio dei Novagli
1,3 Km
Ospedali Ospedali
Spedali Civili Brescia Montichiari
2,8 Km
Supermercati Supermercati
Tosano
2,5 Km
Negozi Negozi
Forneria Bosetti
1,4 Km
Bar Bar
Bar Stazione di Servizio "6 Tu"
1,1 Km
Cafe de La Place
1,3 Km
Bar di Eni - Stazione di servizio
1,3 Km
Bar Gelateria "Zucchero Gelato"
1,4 Km
Central Bar
1,4 Km
Ristoranti Ristoranti
L'angolo nascosto
1,2 Km
Pizzeria L'Alta Marea
1,3 Km
Ristorante Boschetti srl
2,7 Km
Rino's
2,8 Km
Mostra tutto

Caratteristiche

Rif.:
61130385
Piano:
2 di 2 con ascensore (ultimo Piano)
Box:
1
Posti auto:
1
Terrazzi:
1
Camere da letto:
2
Mostra tutto
Prezzo Prezzo
€ 75.000
Rata mutuo Rata mutuo
€ 354 / mese
Proponi il tuo prezzoProponi il tuo prezzo

Classe Energetica

Questo immobile è esente da classe energetica
Anno di costruzione:
2006
Riscaldamento:
Autonomo
Tipo impianto:
A radiatori
Tipo alimentazione:
Metano

Ti interessa visionare l'immobile?

Fissa un appuntamento  Fissa un appuntamento

Richiedi informazioni

Clicca su Leggi per aprire l'informativa
* Questi campi sono obbligatori

Calcola il tuo mutuo

Semplice e senza impegno
Anticipo

( % )
Mutuo

( % )

pochi semplici passi

inserisci i tuoi dati
Questionario completato
Grazie per aver richiesto un appuntamento senza impegno con un nostro Consulente del Credito e Assicurativo.

Hai inserito correttamente tutti i dati necessari e a breve riceverai una e-mail con un link da convalidare per inviare i tuoi dati.
Affiliato
Studio Montichiari Sas
Corso Martiri della Liberta', 44 25018 Montichiari (BS)

Il nostro staff


  • Stefano Pantano
    Affiliato
Corso Martiri della Liberta', 44 25018 Montichiari (BS)
Zona: Montichiari
Mostra su mappa
Orari: lun.-ven. 09.00-12.30/15.00-19.30; sab. 09.00-12.00
Affiliato
Studio Montichiari Sas
Corso Martiri della Liberta', 44 25018 Montichiari (BS)

2025 Tecnocasa Franchising S.p.A. - P. IVA 08365160152 - Via Monte Bianco 60/A 20089 Rozzano (MI). Ogni agenzia ha un proprio titolare ed è autonoma. Privacy policy | Policy utilizzo | Cookie policy