Casa indipendente in vendita

Montichiari, Via Tito Speri
€ 256.000
10 locali 10 locali
500 Mq 500 Mq

Casa indipendente in vendita

Montichiari, Via Tito Speri

Descrizione annuncio

ATTENZIONE IMMOBILE VENDUTO TRAMITE ASTA DEL 04/03/2026.

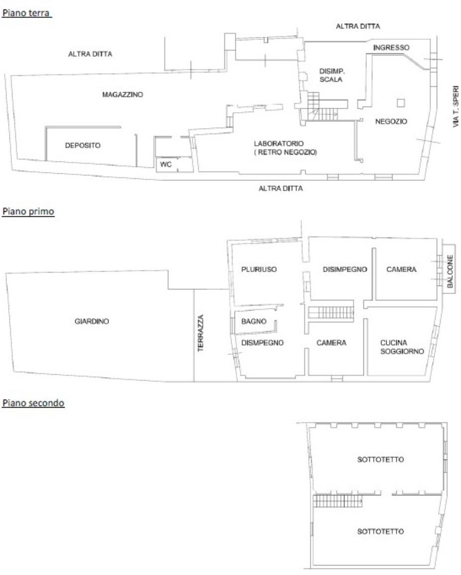
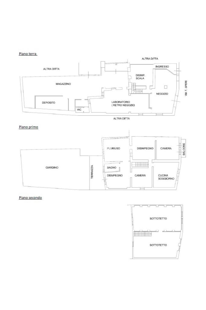
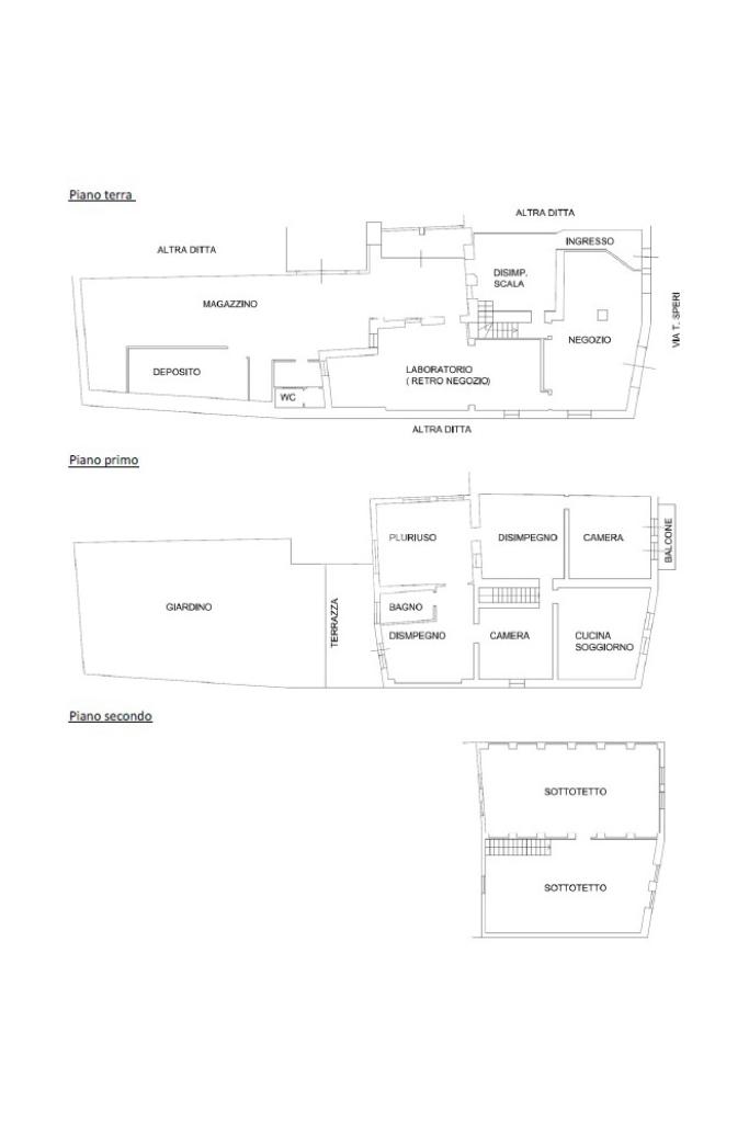
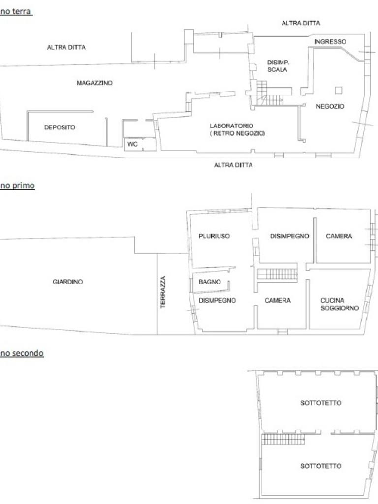
Intero fabbricato sviluppato su due livelli con ampio sottotetto allo stato rustico.
Negozio ed autorimessa al piano terra, abitazione al primo piano oltre a locali deposito/magazzino al piano terra.

IMMOBILI OGGETTO DI ESECUZIONE IMMOBILIARE. IL PREZZO E' RIFERITO ALL'OFFERTA MINIMA.

TECNOCASA AL TUO SERVIZIO

La nostra Agenzia mette a disposizione tutta la professionalità acquisita dalla pluriennale esperienza nel settore delle compravendite e delle locazioni immobiliari, offrendo un servizio a 360° che ha come obiettivo la piena soddisfazione del Cliente.

Servizi per chi vuole vendere:

Conoscenza dettagliata della zona e dell'andamento del mercato locale che permette una corretta valutazione dell'immobile.

Promozione pubblicitaria adeguata con la pubblicazione di annunci sul periodico Tecnocasa (tiratura 180.000 copie), su varie pubblicazioni locali e sul sito Contatta l'Agenzia con il servizio 'Invia Richiesta'

Assistenza in tutte le fasi della compravendita.

Valutazione gratuita.

Assistenza finanziaria all'Acquirente per garantire il saldo alla stipula del rogito notarile.

Banca Dati condivisa con le altre Agenzie del Gruppo che garantisce un elevato numero di potenziali acquirenti.

Gestione degli appuntamenti e organizzazione delle visite all'immobile.

Nessun compenso dovuto in caso di mancata conclusione dell'affare.

Servizi per chi vuole acquistare:

Assistenza continuativa fino alla definizione dell'operazione di acquisto.

Consulenza di un Professionista che conosce in modo dettagliato la zona, l'andamento del mercato locale e le tipologie degli immobili presenti.

Condivisione della richiesta fra più Agenzie ubicate nelle zone di interesse che moltiplica le possibilità di trovare la casa giusta.

Immobili al reale prezzo di mercato: la profonda conoscenza della realtà locale permette di formulare valutazioni corrette e rispondenti alla domanda e all'offerta della zona.

Consulenza finanziaria per trovare il mutuo adatto alle proprie esigenze.

Mostra tutto

Nelle vicinanze

Trasporto pubblico Trasporto pubblico
Trasporto pubblico
1,3 Km
Montichiari - S.S. 236 Goitese, Mercato
Montichiari - S.S. 236 Goitese, Mercato
1,9 Km
Ricariche auto elettriche Ricariche auto elettriche
Garda Hotel
2,0 Km
Scuole Scuole
Istituto di Istruzione Superiore Don Milani
1,2 Km
Scuole
1,6 Km
Scuola Primaria Pio X
1,6 Km
Farmacia Farmacia
Farmacia Farmacia Ex Prignachi Di Mimini Luigi
960 m
San Pancrazio
1,2 Km
Farmacia Di Lena
1,2 Km
Farmacia Comunale 2
1,9 Km
Farmacia Comunale
2,0 Km
Ospedali Ospedali
Spedali Civili Brescia Montichiari
1,7 Km
Supermercati Supermercati
LIDL
910 m
Rossetto
1,2 Km
Penny Market
1,2 Km
Coop
1,3 Km
Famila
2,0 Km
Negozi Negozi
Veronica Fashion
1,0 Km
Pasticceria Boifava
1,0 Km
Maffoni abbigliamento
1,0 Km
Checkpoint
1,2 Km
Panificio Bertoni
1,2 Km
Bar Bar
piccolo circolo Ombra
120 m
Al Galeter
160 m
Capita
370 m
Gelateria Mozart
910 m
My Tay
910 m
Ristoranti Ristoranti
La Bottega dei Sapori
890 m
Pizzeria Aquila d'oro
920 m
Ristorante Bar Pizzeria Al cervo
970 m
La Lanterna
980 m
Osteria Antica Colombina
1,0 Km
Mostra tutto

Caratteristiche

Rif.:
61174035
Piano:
Su più livelli di 2
Totale piani:
2
Arredamento:
Assente
Condizionamento:
Autonomo
Ascensore:
No
Mostra tutto
Prezzo Prezzo
€ 256.000
Rata mutuo Rata mutuo
€ 1.195 / mese
Proponi il tuo prezzoProponi il tuo prezzo

Classe Energetica

Questo immobile è esente da classe energetica
Anno di costruzione:
1980
Riscaldamento:
Autonomo
Tipo impianto:
A radiatori
Tipo alimentazione:
Metano

Ti interessa visionare l'immobile?

Fissa un appuntamento  Fissa un appuntamento

Richiedi informazioni

Clicca su Leggi per aprire l'informativa
* Questi campi sono obbligatori

Calcola il tuo mutuo

Semplice e senza impegno
Anticipo

( % )
Mutuo

( % )

pochi semplici passi

inserisci i tuoi dati
Questionario completato
Grazie per aver richiesto un appuntamento senza impegno con un nostro Consulente del Credito e Assicurativo.

Hai inserito correttamente tutti i dati necessari e a breve riceverai una e-mail con un link da convalidare per inviare i tuoi dati.
Affiliato
Studio Montichiari Sas
Corso Martiri della Liberta', 44 25018 Montichiari (BS)

Il nostro staff


  • Stefano Pantano
    Affiliato
Corso Martiri della Liberta', 44 25018 Montichiari (BS)
Zona: Montichiari
Mostra su mappa
Orari: lun.-ven. 09.00-12.30/15.00-19.30; sab. 09.00-12.00
Affiliato
Studio Montichiari Sas
Corso Martiri della Liberta', 44 25018 Montichiari (BS)

2026 Tecnocasa Franchising S.p.A. - P. IVA 08365160152 - Via Monte Bianco 60/A 20089 Rozzano (MI). Ogni agenzia ha un proprio titolare ed è autonoma. Privacy policy | Policy utilizzo | Cookie policy